Espace propriétaire
fr

Votre recherche

Lagord (17140)

4 pièces - 76,43 m²

Appartement 4 pièces 76 m²

283 500 €
Ref : V10000074
A propos de ce bien

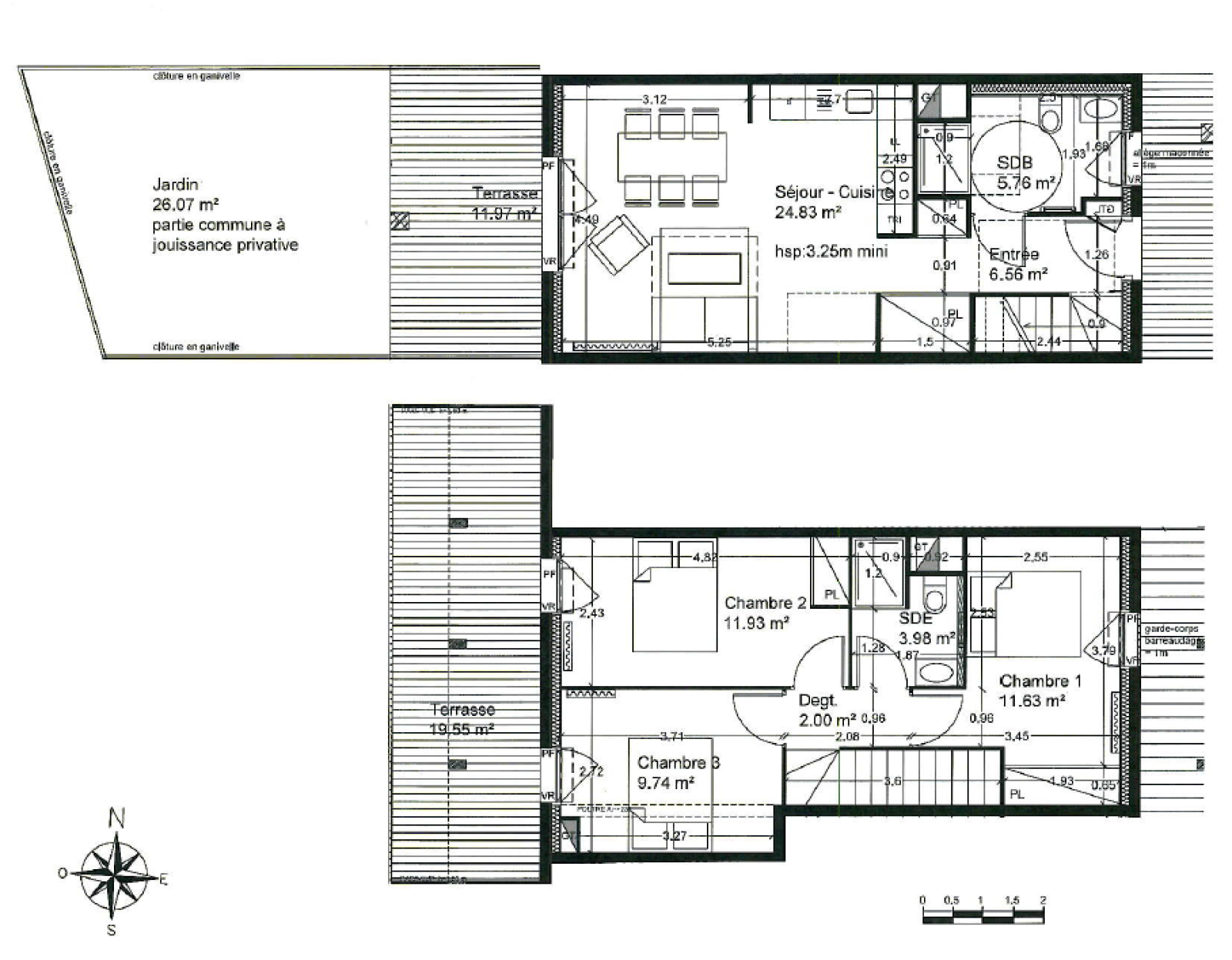
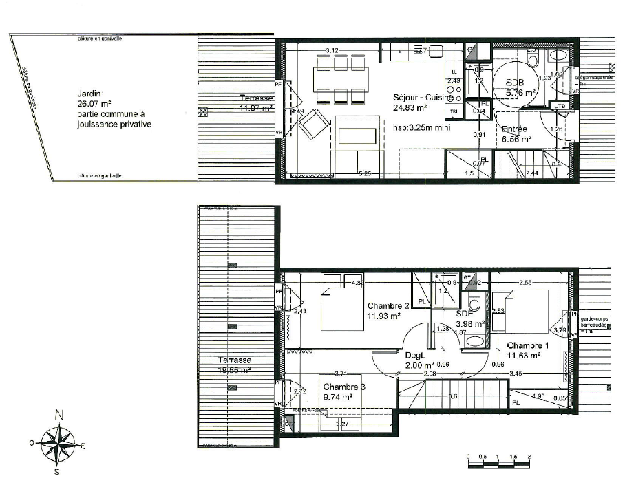
Appartement de type T4 d'une surface d'environ 76 m² (76,43 m² de surface Loi Carrez) composé d'une entrée donnant accès à un salon/séjour avec une cuisine américaine et une salle de bain avec WC. L'étage dispose de 3 chambres et d'une salle d'eau avec WC. Côté extérieur, il y a un jardin, une terrasse et une place de stationnement.

Descriptif de ce bien
Général
Code postal 17140
Surface loi Carrez (m²) 76,43 m²
Nombre de chambre(s) 2
Nombre de pièces 4
Nombre de niveaux 1
Détails
Nb de salle de bains 1
Cuisine Américaine
Type de cuisine SEMI-EQUIPEE
Mode de chauffage Electrique
Type de chauffage Radiateur
Format de chauffage Collectif
Visiophone OUI
Terrasse OUI
Murs mitoyens 2
Nombre de parking 1
Exposition Ouest
Année de construction 2022
Composition
Rez de chaussée
salon/sejour 24.83 m²

entrée 6.56 m²

Dégagement 2 m²

salle de bain 5.76 m²

jardin 26.07 m²

terrasse 11.97 m²

Etage 1
chambre 11.63 m²

chambre 11.93 m²

chambre 9.74 m²

Salle d'eau 3.98 m²

terrasse 19.55 m²

Financier
Prix de vente honoraires TTC inclus 283 500 €
Prix de vente honoraires TTC exclus 270 000 €
Honoraires TTC à la charge acquéreur 5 %
Charges 55 €
Energie
DPE GES
Autour du bien
  • Commerces et santé
  • Loisirs
  • Ecoles
  • Transports
  • Pratique
Contacter pour ce bien
L'agence
Téléphone 06 79 73 27 31
Adresse
88 boulevard Emile Delmas 17000 La Rochelle

* Champ obligatoire

Les informations recueillies sur ce formulaire sont enregistrées dans un fichier informatisé par La Boite Immo agissant comme Sous-traitant du traitement pour la gestion de la clientèle/prospects de l'Agence / du Réseau qui reste Responsable du Traitement de vos Données personnelles. La base légale du traitement repose sur l'intérêt légitime de l'Agence / du Réseau. Elles sont conservées jusqu'à demande de suppression et sont destinées à l'Agence / au Réseau. Conformément à la loi « informatique et libertés », vous disposez des droits d’accès, de rectification, d’effacement, d’opposition, de limitation et de portabilité de vos données. Vous pouvez retirer votre consentement à tout moment en contactant directement l’Agence / Le Réseau. Consultez le site https://cnil.fr/fr pour plus d’informations sur vos droits. Si vous estimez, après avoir contacté l'Agence / le Réseau, que vos droits « Informatique et Libertés » ne sont pas respectés, vous pouvez adresser une réclamation à la CNIL. Nous vous informons de l’existence de la liste d'opposition au démarchage téléphonique « Bloctel », sur laquelle vous pouvez vous inscrire ici : https://www.bloctel.gouv.fr Dans le cadre de la protection des Données personnelles, nous vous invitons à ne pas inscrire de Données sensibles dans le champ de saisie libre.
Ce site est protégé par reCAPTCHA, les Politiques de Confidentialité et les Conditions d'Utilisation de Google s'appliquent.

Découvrir nos outils