Espace propriétaire
fr

Votre recherche

Exclusivité
Périgny (17180)

1 pièces - 46 m²

Appartement 1 pièce de 46 m²

169 600 €
Ref : V10000062
A propos de ce bien

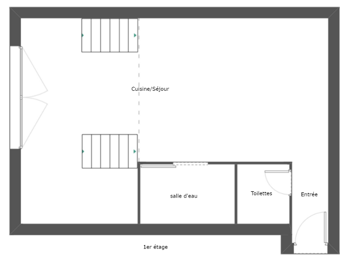
Appartement de type T1 d'une surface d'environ 46 m² composé d'une entrée donnant accès aux WC, d'une salle d'eau, d'un séjour avec une cuisine ouverte et deux mezzanines pour l'espace de couchage.

Descriptif de ce bien
Général
Code postal 17180
Surface loi Carrez (m²) 46,57 m²
Nombre de pièces 1
Etage 1
Nombre de niveaux 1
Ascenseur NON
Détails
Nb de salle d'eau 1
Cuisine Américaine
Type de cuisine SEMI-EQUIPEE
Mode de chauffage Electrique
Type de chauffage Panneaux rayonnant
Format de chauffage Individuel
Balcon NON
Terrasse NON
Murs mitoyens 1
Cave NON
Année de construction 1900
Composition
Rez de chaussée
entrée 2.15 m²

WC 2.24 m²

Salle d'eau 3.46 m²

salon/sejour 32.58 m²

Etage 1
mezzanine 4.27 m²

mezzanine 1.87 m²

Financier
Prix de vente honoraires TTC inclus 169 600 €
Prix de vente honoraires TTC exclus 160 000 €
Honoraires TTC à la charge acquéreur 6 %
Energie
DPE GES
Autour du bien
  • Commerces et santé
  • Loisirs
  • Ecoles
  • Transports
  • Pratique
Contacter pour ce bien
L'agence
Téléphone 06 79 73 27 31
Adresse
88 boulevard Emile Delmas 17000 La Rochelle

* Champ obligatoire

Les informations recueillies sur ce formulaire sont enregistrées dans un fichier informatisé par La Boite Immo agissant comme Sous-traitant du traitement pour la gestion de la clientèle/prospects de l'Agence / du Réseau qui reste Responsable du Traitement de vos Données personnelles. La base légale du traitement repose sur l'intérêt légitime de l'Agence / du Réseau. Elles sont conservées jusqu'à demande de suppression et sont destinées à l'Agence / au Réseau. Conformément à la loi « informatique et libertés », vous disposez des droits d’accès, de rectification, d’effacement, d’opposition, de limitation et de portabilité de vos données. Vous pouvez retirer votre consentement à tout moment en contactant directement l’Agence / Le Réseau. Consultez le site https://cnil.fr/fr pour plus d’informations sur vos droits. Si vous estimez, après avoir contacté l'Agence / le Réseau, que vos droits « Informatique et Libertés » ne sont pas respectés, vous pouvez adresser une réclamation à la CNIL. Nous vous informons de l’existence de la liste d'opposition au démarchage téléphonique « Bloctel », sur laquelle vous pouvez vous inscrire ici : https://www.bloctel.gouv.fr Dans le cadre de la protection des Données personnelles, nous vous invitons à ne pas inscrire de Données sensibles dans le champ de saisie libre.
Ce site est protégé par reCAPTCHA, les Politiques de Confidentialité et les Conditions d'Utilisation de Google s'appliquent.

Découvrir nos outils